4745 Rensch Rd, Grove City, OH 43123
Toggle Navigation
Images
Videos
Floor Plans
Map
4745 Rensch Rd
Grove City, OH 43123
Scroll to Content
Images
Slideshow
Photo Grid
Hide
Previous
Next
Show more
Videos
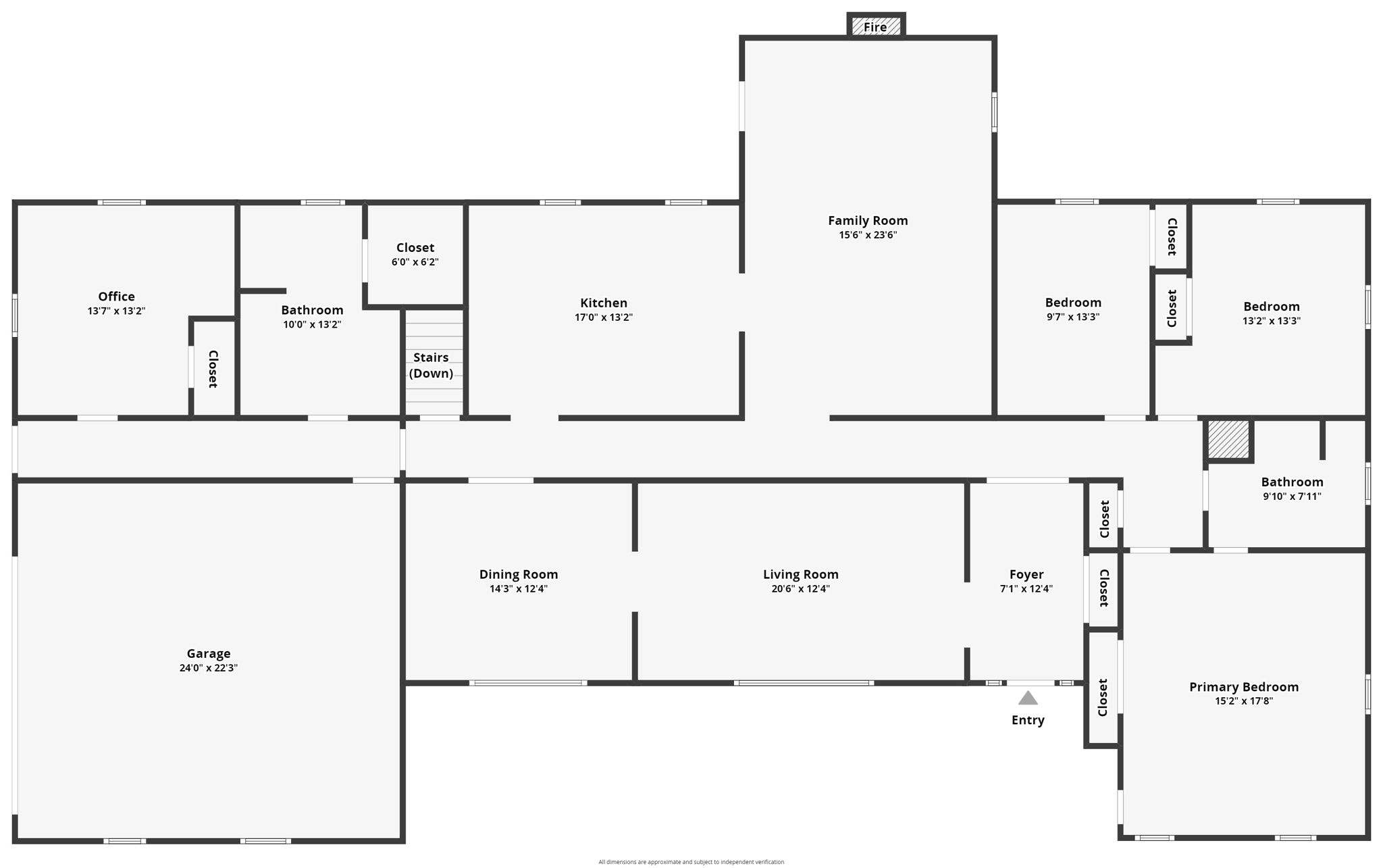
Floor Plans
Slideshow
Photo Grid
Hide
Previous
Next